• Skip to Navigation
  • Skip to Content

Roberto Rijo arquitectos asociados

  • Estudio
    • Reseña
    • Premios
    • Prensa
  • Filosofía
  • Proyectos
    • Oficina + Comercial
      • G-Hart
      • La Marqueteria
      • Lounge and Restaurant
      • Plaza Lama
      • Veron Center
      • Plaza La Z
      • Banco Metropolitano
      • San Juan Shopping Center
      • Hooters SJSC.
      • CHIPS Food Spa (SJSC).
      • Ginaka 2.0
    • Edificios Residenciales
      • Condominio Alberto
      • Condominio Dual
      • Condominio Michelle
      • Marparaiso
      • Circa Residences
      • Ginaka 18
      • Condominio Idalia
      • Ala 6
    • Planeamiento
      • Estrategia De Intervencion
      • Sierra Fría Mountain Resort
      • The Mizin Villa
    • Residencias Privadas
      • Barranca 44
      • Monzon Marte
      • Casa Armeria
    • Complejos Residenciales
      • Casita Linda
      • Las gaviotas
      • Pradera Verde
      • Prados de San Luis
      • Arcoiris Sur
      • Villas del mirador
      • Residencial Gina Alexandra
      • Villas Michelle
    • Institucional
      • Escuela Bonita
    • Cocktail
  • Contacto
  • Area de Clientes
  • Español
  • English
  • Imágenes

  • More
  • More
  • More
  • More
  • More
  • More
  • More
  • More
  • More

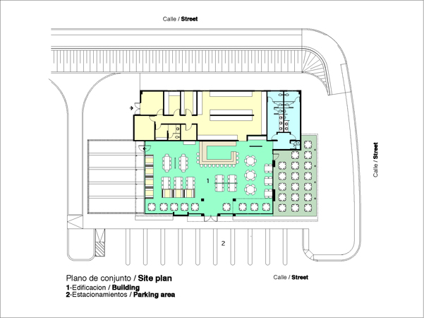
  Hooters SJSC.

Bavaro, Punta cana
Republica Dominicana
2011
 
Cliente: Glamis S.A.
Estado: Concepto Preliminar
Area de construccion: 505 M2
Colaboradores
Elaine Rodriguez, Franklin Garcia, Pedro Dajer,Hector Figuereo, Raquel vasquez, Enoc melendez
Consultores
Electricidad: Ing. Gabino Hernandez
Sanitarios: ALVARI, S.A
Estructural: Grupo Constructor del Caribe
Paisajismo: Palo Verde, Andres Zaglul
  • Atrás
  • Leer más

© 2008. All rights reserved.   Roberto Rijo + arquitectos asociados   |  Contact  |  Site Design: Kounterattack Design