• Skip to Navigation
  • Skip to Content

Roberto Rijo arquitectos asociados

  • Estudio
    • Reseña
    • Premios
    • Prensa
  • Filosofía
  • Proyectos
    • Oficina + Comercial
      • G-Hart
      • La Marqueteria
      • Lounge and Restaurant
      • Plaza Lama
      • Veron Center
      • Plaza La Z
      • Banco Metropolitano
      • San Juan Shopping Center
      • Hooters SJSC.
      • CHIPS Food Spa (SJSC).
      • Ginaka 2.0
    • Edificios Residenciales
      • Condominio Alberto
      • Condominio Dual
      • Condominio Michelle
      • Marparaiso
      • Circa Residences
      • Ginaka 18
      • Condominio Idalia
      • Ala 6
    • Planeamiento
      • Estrategia De Intervencion
      • Sierra Fría Mountain Resort
      • The Mizin Villa
    • Residencias Privadas
      • Barranca 44
      • Monzon Marte
      • Casa Armeria
    • Complejos Residenciales
      • Casita Linda
      • Las gaviotas
      • Pradera Verde
      • Prados de San Luis
      • Arcoiris Sur
      • Villas del mirador
      • Residencial Gina Alexandra
      • Villas Michelle
    • Institucional
      • Escuela Bonita
    • Cocktail
  • Contacto
  • Area de Clientes
  • Español
  • English
  • Imágenes
  • Drawing

  • More
  • More
  • More
  • More
  • More
  • More
  • More
  • More
  • More
  • More
  • More
  • More
  • More
  • More
  • More
  • More
  • More
  • More

  Villas Michelle

Santo Domingo
Republica Dominicana
2001
 
Cliente: Constructora F y V, S.A.
Estado: Terminado
Area Lote: 3,313 M2
Area de construccion: 2,600 M2
Colaboradores
Domingo Garcia, Carolina Rivera, Tobias Rijo
Consultores
Electricidad: Ing. Gabino Hernandez
Sanitarios: Ing. Rafael Ramirez
Estructural: Ing. Nelson Tolentino
Descripción del Proyecto
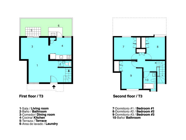
I En la parte Oeste de Santo Domingo se halla el sector de Manoguayabo, ubicado al norte de la Autopista Duarte, principal vía de acceso a la ciudad desde la región Norte de la isla, donde se concentra la mayor parte de la producción agropecuaria del país. La ubicación preferencial de Manoguayabo ha propiciado que se desarrollen en sus márgenes, sin planificación, importantes centros de producción industrial y de servicios que, dadas sus características de generación de empleo y promoción del intercambio económico en un ambiente de gran movilidad social, han provocado, a su vez, un incremento del déficit habitacional localizado en la zona, que se caracteriza, en virtud de la falta de planificación, por el uso mixto del suelo acompañado de grandes áreas baldías. Las infraestructuras básicas de alcantarillado, electricidad y vías se encuentran en proceso de adecuación, razón por la cual los criterios de desarrollo de nuevos proyectos se ven afectados por las intervenciones informales, que definen el panorama. En este contexto, se nos ha llamado a intervenir un lote de aproximadamente 3,200 m2, con topografía ligeramente irregular, con el propósito de desarrollar un proyecto para el mercado de promoción inmobiliaria, según los parámetros específicos de este tipo de intervención. II El principio de composición propuesto divide el lote en dos áreas de geometría similar y desarrolla, en cada una de éstas, grupos de unidades de vivienda relacionadas con el espacio central que, a su vez, se relaciona con la calle. La resultante son dos conjuntos de 14 y 15 unidades respectivamente, dispuestos longitudinalmente sobre el lote en forma de U e independientes entre sí, diseñados con orientación Este-Oeste, para reducir la incidencia del sol. Las viviendas propuestas han sido desarrolladas en dos niveles: las áreas sociales y de servicio en planta baja y las áreas de dormitorio en la planta alta. Cada unidad dispone de un jardín frontal, terraza y un pequeño patio. La organización de estos volúmenes habitables nos ofrece una definición cuidadosa de los espacios publico y privado, toda vez que permite controlar visualmente las actividades publicas desde las unidades de vivienda, al tiempo que ofrece cierto sentido de intimidad y protección en la interacción con un entorno inmediato no-reglamentado. La configuración de las unidades produce diferentes tipologías combinatorias que permiten, en su composición sobre el bloque, una lectura individual, propia, propiciada por la alternación volumétrica, el uso del color, la textura, etc., potenciándose así el carácter de la imagen colectiva de la intervención.
  • Atrás
  • Leer más

© 2008. All rights reserved.   Roberto Rijo + arquitectos asociados   |  Contact  |  Site Design: Kounterattack Design