• Skip to Navigation
  • Skip to Content

Roberto Rijo arquitectos asociados

  • Estudio
    • Reseña
    • Premios
    • Prensa
  • Filosofía
  • Proyectos
    • Oficina + Comercial
      • G-Hart
      • La Marqueteria
      • Lounge and Restaurant
      • Plaza Lama
      • Veron Center
      • Plaza La Z
      • Banco Metropolitano
      • San Juan Shopping Center
      • Hooters SJSC.
      • CHIPS Food Spa (SJSC).
      • Ginaka 2.0
    • Edificios Residenciales
      • Condominio Alberto
      • Condominio Dual
      • Condominio Michelle
      • Marparaiso
      • Circa Residences
      • Ginaka 18
      • Condominio Idalia
      • Ala 6
    • Planeamiento
      • Estrategia De Intervencion
      • Sierra Fría Mountain Resort
      • The Mizin Villa
    • Residencias Privadas
      • Barranca 44
      • Monzon Marte
      • Casa Armeria
    • Complejos Residenciales
      • Casita Linda
      • Las gaviotas
      • Pradera Verde
      • Prados de San Luis
      • Arcoiris Sur
      • Villas del mirador
      • Residencial Gina Alexandra
      • Villas Michelle
    • Institucional
      • Escuela Bonita
    • Cocktail
  • Contacto
  • Area de Clientes
  • Español
  • English
  • Imágenes
  • Drawings

  • More
  • More
  • More
  • More
  • More
  • More
  • More
  • More
  • More
  • More
  • More
  • More
  • More
  • More
  • More
  • More
  • More
  • More

  Barranca 44

La Romana
Republica Dominicana
2007
 
Cliente: Constructora Ginaka
Estado: Diseño preliminar
Colaboradores
Arq. Elaine Rodriguez, Hector Figuereo, Franklin Garcia, Arq. Reoberta Vasquez, Diomedes Mercedes
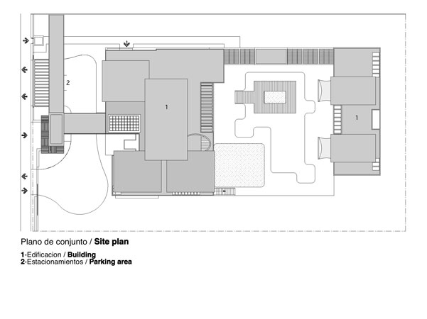
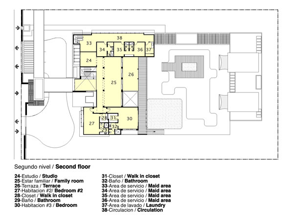
Descripción del Proyecto
Casa De Campo es uno de los enclaves turisticos mas importantes y de mayor consolidacion en el area del Caribe situado en la Costa sur de Republica Dominicana, en la Provincia de La Romana , el desarrollo general de su master plan se caracteriza por una serie sucesiva de lotes interconectados en los que se van desarrollando paulatinamente los diversos emprendimientos y en los que se pueden observar a traves de estos el caracter arquitectonico o las tendencias imperantes desde sus inicios preponderando el desarrollo de viviendas modestas a las espectaculares viviendas unifamiliares de los ultimos años. En uno de esos desarrollos nombrado Barranca y sobre el lote #44 trata nuestra intervencion. Una casa diseñada en los 70 influida por las tipologias de las casas de verano de los suburbios de NY , sobre un lote de unos 1000 mts2 y de 500 m2 de construccion . El encargo de ampliacion y adecuacion proveniente de los propietarios originales plantea un amplio programa de necesidades , cierre frontal , estacionamientos, areas sociales , areas de servicio, areas dormitorio, casa de huespedes..etc. Nuestra propuesta considera mantener la estructura de la vivienda original, la estrategia es crear una envolvente que permitiera crear o ampliar nuevos espacios, se interconectaria con el acceso peatonal produciendo una marquesina de llegada techada relacionada con el lobby de acceso , en este primer piso estarian contenidas la cocina, relacionada con los servicios en Segundo nivel. areas dormitorio el comedor y las areas sociales que se relacionan con una gran terraza interconectada con una pasarela apergolada que conecta con la casa de huespedes, configurando una especie de claustro que contiene la piscina que fue preservada en su forma original, la composicion formal se basa en el volumen que rodea la casa existente desplazandose y produciendo diferentes situaciones de relacion con el interior , las techumbres proyectan amplios aleros , los cierres y voladizos estan proyectados en celosias de Madera para proteger de la intimidad y el ataque inclemente del sol. En sentido general barranca esta proyectada para satisfacer un cambio de estilo de vida y de las necesidades contemporaneas de ocio.
  • Atrás
  • Leer más

© 2008. All rights reserved.   Roberto Rijo + arquitectos asociados   |  Contact  |  Site Design: Kounterattack Design